건축대학 사이버갤러리

Cyber Gallery

2025년 1학기 졸업작품

RE:MARKET

온라인에 밀려난 전통시장 오프라인 경험을 위한 시장 플랫폼 제안

박주연 건축학전공 졸업 2025, 지도교수 : 전진영 교수

전통시장은 오랜 역사와 고유한 문화를 간직하고 있지만, 온라인 쇼핑의 확산으로 점점 사람들의 발길이 줄고 있습니다.
본 프로젝트는 이러한 전통시장의 오프라인 경험을 현대적 감각으로 재해석하여 새로운 시장 플랫폼을 제안합니다.
시장의 구조와 동선을 디지털과 연계하면서도, 사람들의 체험과 교류, 그리고 우연한 발견의 즐거움을 중심으로 설계했습니다.
전통적 상점의 개성과 특색을 살리면서, 현대적인 디자인 요소와 사용자 친화적 경험을 접목하여 공간의 재해석을 시도했습니다.
단순한 쇼핑을 넘어, 방문객이 오감으로 시장을 느끼고, 기억 속에 오래 남는 경험을 만들고자 합니다.
이를 통해 전통과 현대가 공존하며 살아 숨 쉬는 새로운 시장 문화를 구현하고, 지역 사회와 상인 모두에게 활력을 불어넣는 플랫폼을 목표로 합니다.

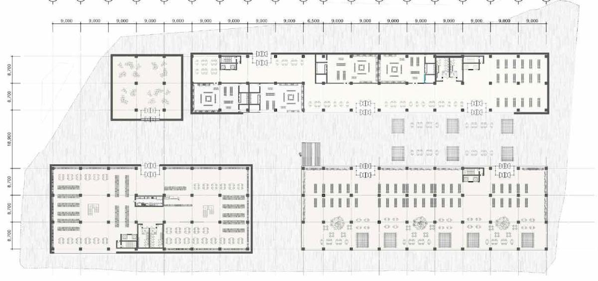
설계성과 이미지

설계성과 이미지

설계성과 이미지

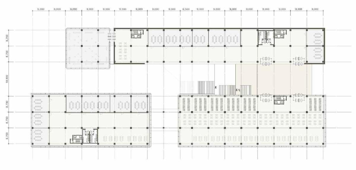
설계성과 이미지

설계성과 이미지

설계성과 이미지

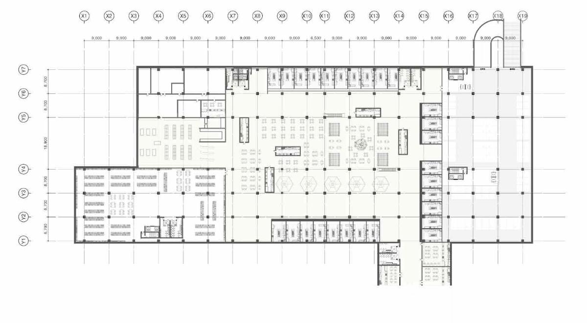
설계성과 이미지

설계성과 이미지

설계성과 이미지

설계성과 이미지

설계성과 이미지

설계성과 이미지

키워드 :
  • 전통시장