건축대학 사이버갤러리

Cyber Gallery

2025년 1학기 졸업작품

책의 언덕_용산 도심 속 공원을 품은 공공도서관

박인식 건축학전공 졸업 2025, 지도교수 : 옥태범 교수

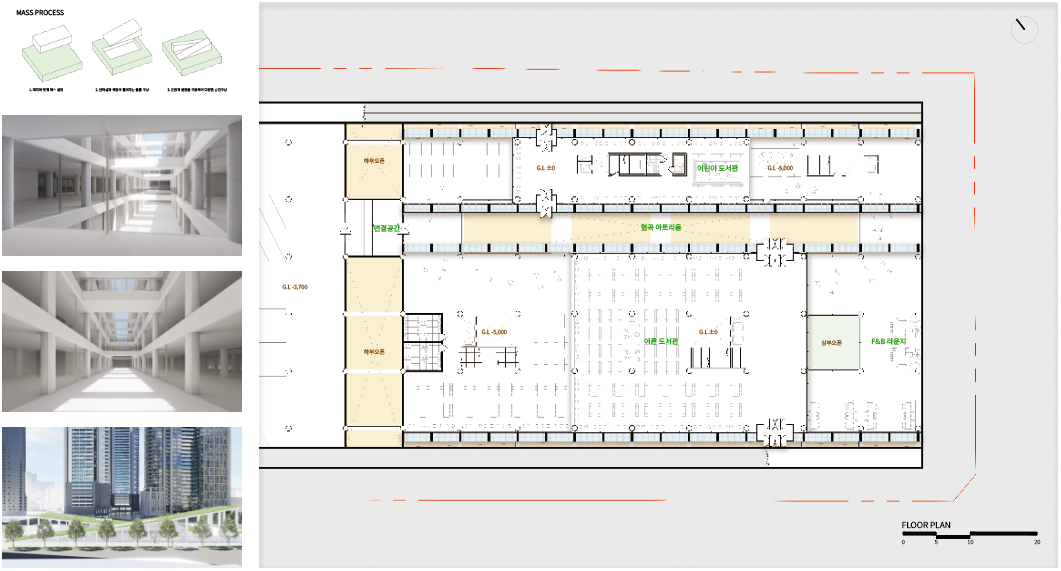
제안안은 현재 서울시 25개 자치구 중 문화시설(도서관)의 수는 2006년부터 매년 하위권을 기록하는 용산구를 선택하고 필지를 선정함에 있어 인지성, 접근성, 문화 및 상업의 연계성, 일상화를 고려하여 새롭게 조성된 버들개문화공원(서울 용산구 한강로3가 98-4)으로 선정하였다. 해당 사이트는 용산 국제업무지구 개발과 더불어 용산역 앞 광장-미디어광장-버들개문화공원-근린공원-용산어린이정원-국립중앙박물관을 잇는 새로운 게이트웨이를 목표로 용산역 지하화와 같이 진행되고있다. 이에 용산게이트웨이의 새로운 거점으로 공영주차장으로 사용되던 부지가 문화공원으로 새롭게 조성되어 23년 12월 일부개방을 시작으로 현재까지 계획이 진행되고 있다. 이에 새롭게 생기는 1.4km가량의 산책길을 조성한다는 게이트웨이는 단순히 용산역에서부터 국립중앙박물관까지 이어지는 하나의 길이 아닌 업무지구 개발, 대중교통 중심지, 새로운 문화거점 등을 고려하였을 때 이용자에게 새로운 환경을 제공하고 다양한 경험을 할 수 있도록 녹지의 입체화를 제안한다. 용산역에서부터 길게 뻗어있는 녹지의 일부를 들어올려 다니는 산책길이 건물의 한 면처럼 보이게하여 더 많은 녹지를 노출시키고 녹지의 수직적인 요소가 추가된다. 용산역에서부터 이어지는 길을 따라 올려진 메인 도서관(어른)과 용산공원과 접해있는 서브 도서관(어린이)으로 매스를 구성하고 이에 맞는 프로그램을 배치한다.

설계성과 이미지

설계성과 이미지

설계성과 이미지

설계성과 이미지

설계성과 이미지

설계성과 이미지

설계성과 이미지

키워드 :
  • 용산구,
  • 공공도서관,
  • 도심속공원,
  • 녹지,
  • 열린공간,
  • 지하광장,
  • 아트리움,
  • 용산게이트웨이