건축대학 사이버갤러리

Cyber Gallery

2025년 1학기 졸업작품

광화문, 시민과 시간이 만나는 자리

프로필 사진

백종훈 전통건축전공 졸업예정 2027, 지도교수 : 한지만 교수

육조대로·광화문통·세종로·국가상징거리. 600년간 광화문광장을 불러온 명칭이들이다. 이러한 명칭으로 알 수 있듯 광화문광장은 오랫동안 국가를 상징하는 거리로 존재해왔다. 왕이 행차를 하기도 하고, 고위급 정부기관들이 정치를 하고 민과 소통하던 의미깊은 곳이었으나 급격한 경제발전과 개발로 인해 주변의 도시적 맥락과 동떨어졌고 역사성이 퇴색하게 되었다. 서울시는 역사성을 회복하고 시민을 위한 광장으로써 광화문광장의 상징성을 되살리고자 한다. 이에 따라 다양한 켜의 역사적 흔적이 존재하며 중요한 입지에 있는 부지의 건축을 재구성 함으로써 광화문광장의 역사성과 상징성을 회복하고자 한다.

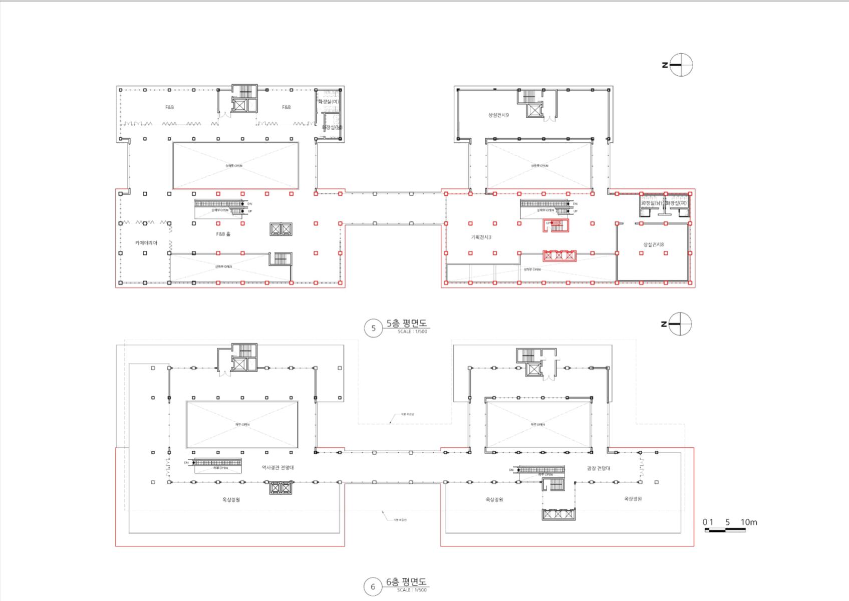
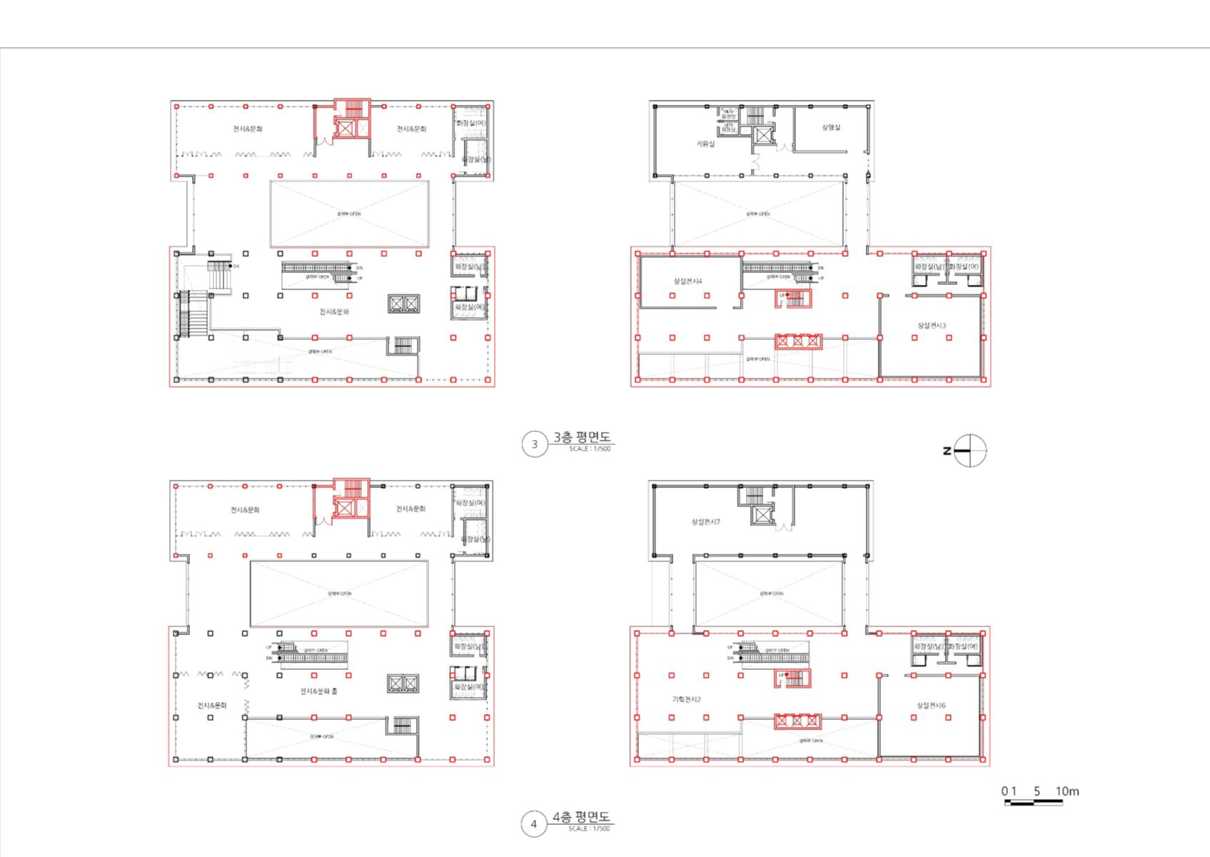
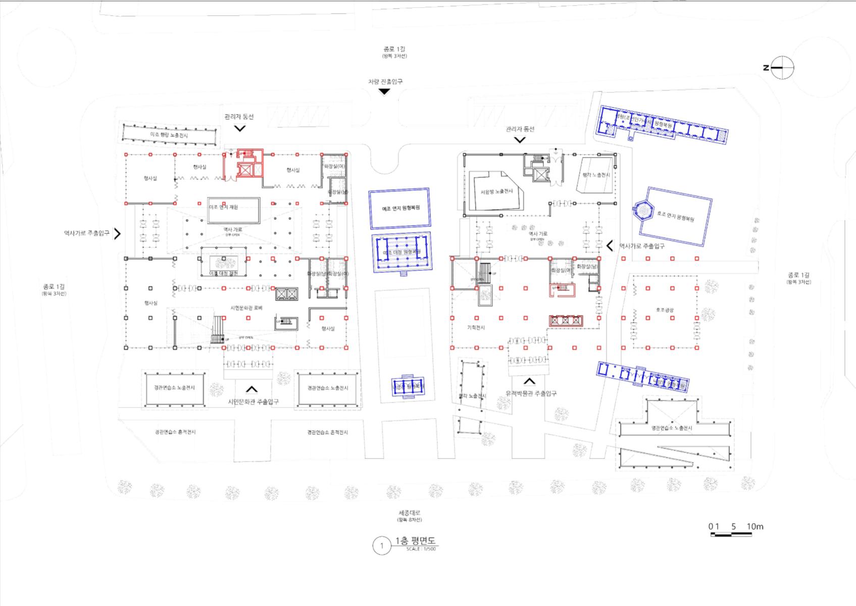
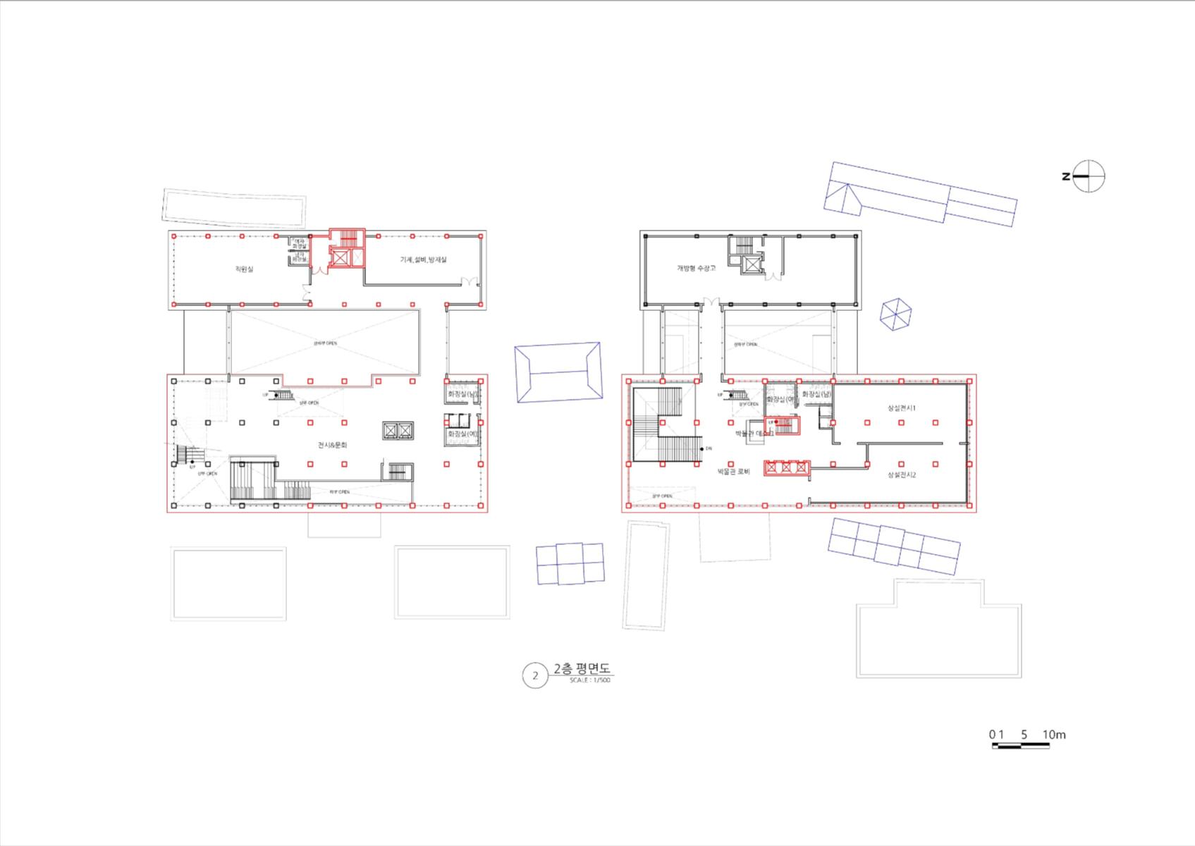
설계성과 이미지

설계성과 이미지

설계성과 이미지

설계성과 이미지

설계성과 이미지

설계성과 이미지

설계성과 이미지

설계성과 이미지

설계성과 이미지

설계성과 이미지

설계성과 이미지

설계성과 이미지

프로젝트 주제 스터디

프로젝트 주제 스터디

프로젝트 주제 스터디

프로젝트 주제 스터디

프로젝트 주제 스터디

키워드 :
  • 등록문화유산,
  • 매장문화유산,
  • 광화문,
  • 문화복합시설,
  • 육조거리