건축대학 사이버갤러리

Cyber Gallery

2025년 1학기 졸업작품

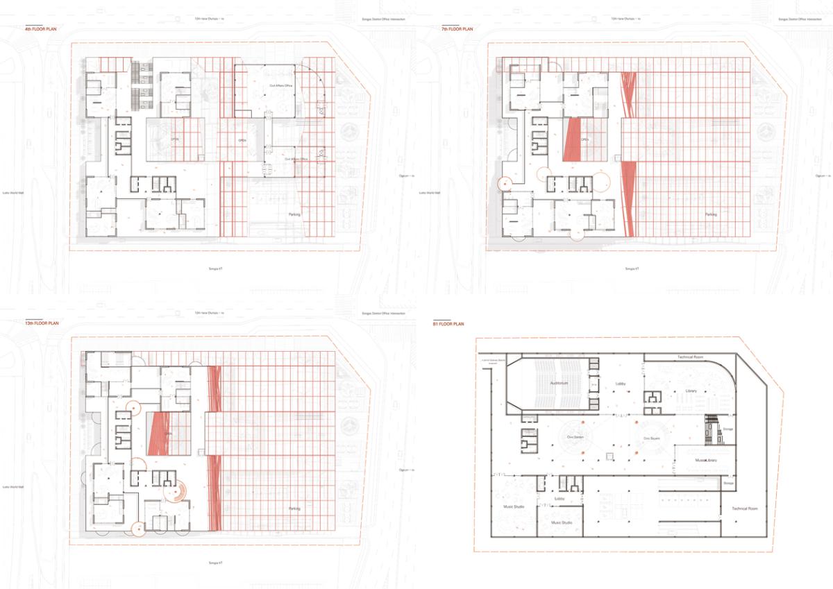
Community Route (Root) _ Songpa City Hall

새로운 구청 시설 제안

프로필 사진

채윤서 전통건축전공 졸업 2024, 지도교수 : 한지만 교수

장려상, 목심회상 수상작

새롭게 제안하는 행정 시설의 랜드마크화

행정시설의 역할이 단순한 사무적인 공간이 아닌 주민을 위한, 주민을 배려하는, 주민을 향한 공간으로 확대되는 만큼 행정 시설의 역할이 더욱 다양해지고 그 기능 또한 많아졌다. 이런 다양한 기능이 집약되면서 사람들의 생활을 행정 시설 내에 담을 수 있는데 이러한 기능에 있어서 행정 시설이 “공동 마당“ 으로써 역할을 한다면 그 의미가 더욱이 명확해 질 것이라고 생각했다. 업무시설이 주가 되는 공간으로써 행정 시설이 남는 것이 아닌 주민을 위한 공간으로 확대하고자 한다. 해당 공간 내에서는 다양한 기능이 집약되어 있는 만큼 시민들의 행위가 더욱 자유롭게 일어날 것을 기대하고 또한 랜드마크 시설과 인접하여 위치한 만큼 또 하나의 랜드마크로 작용되는 행정 시설을 제안하고자 한다.

설계성과 이미지

설계성과 이미지

설계성과 이미지

설계성과 이미지

설계성과 이미지

설계성과 이미지

설계성과 이미지

설계성과 이미지

설계성과 이미지

설계성과 이미지

설계성과 이미지

프로젝트 주제 스터디

프로젝트 주제 스터디

프로젝트 주제 스터디

프로젝트 주제 스터디

프로젝트 주제 스터디

키워드 :
  • 구청,
  • 오피스,
  • 아트리움,
  • 중정,
  • 목구조