건축대학 사이버갤러리

Cyber Gallery

2025년 1학기 졸업작품

Rai:link_Walkway

철도 위 여의-대방을 잇는 스포츠센터, 도서관

프로필 사진

김현진 건축학전공 졸업 2024, 지도교수 : 옥태범 교수

장려상 수상작

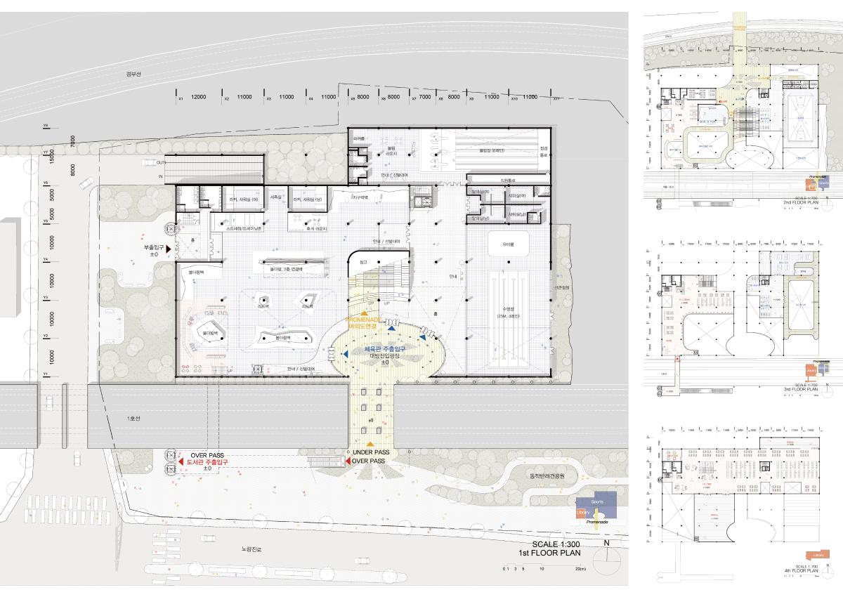
“Rai:link Walkway”는 지상철과 샛강으로 단절된 대방동과 여의도를 연결하는 새로운 보행 연결축이자 도서관과 스포츠시설이 결합된 웰니스 복합문화시설입니다.
서울의 지상철도는 이동을 돕는 중요한 인프라이지만, 때로는 지역 간 단절을 만드는 장벽이 됩니다. 1호선과 경부선 철도로 단절된 대방동과 여의도는 직선거리로는 도보 10분이지만 실제 이동에는 40분이 걸리며, 이는 도시 인프라가 생활권의 불균형을 심화시키는 대표적 사례입니다.

이 프로젝트는 철도 위에 보행교를 놓고, 도서관과 스포츠센터, 클라이밍장, 수영장, 요가실 등 다양한 프로그램을 엮어 ‘새로운 보행연결축’을 제안합니다.
건물은 두 개의 산책로로 구성됩니다. 외부 산책로는 대방동-여의도를 직접 연결하는 브릿지로 도시 단절을 해소하고, 내부 산책로는 건물 전체를 순환하며 도서관과 스포츠공간을 자연스럽게 이어줍니다. 이곳에서 사람들은 걷고, 책을 읽고, 운동하며 이동 그 자체가 경험이 되고, 일상 속에서 정신적·신체적·지적 건강의 균형, 즉 웰니스를 경험하게 됩니다.

중앙광장을 중심으로 양측에 스포츠센터가 배치되고, 이를 감싸는 형태로 4층 전체에 도서관이 구성됩니다. 순환하는 산책로는 층마다 프로그램을 관통하며 연결성과 공공성을 강화하고, 복합적인 경험을 만들어냅니다. 대방동에서 여의도로 흐르는 방향성을 강조한 매스와 지붕 구조는 도시 간 연결의 연속성을 공간적으로 드러냅니다.

본 프로젝트는 철도로 단절된 도시의 흐름을 회복하고, 공공시설이 주민들의 일상 속에 스며들어 웰니스를 실현하는 커뮤니티 거점으로 작동하며, 도시의 장벽을 연결의 축으로 전환합니다.

설계성과 이미지

설계성과 이미지

설계성과 이미지

설계성과 이미지

설계성과 이미지

설계성과 이미지

설계성과 이미지

설계성과 이미지

설계성과 이미지

설계성과 이미지

설계성과 이미지

설계성과 이미지

프로젝트 주제 스터디

프로젝트 주제 스터디

프로젝트 주제 스터디

프로젝트 주제 스터디

프로젝트 주제 스터디

키워드 :
  • #지상철,
  • #지역단절,
  • #대방동,
  • #여의도,
  • #연결,
  • #일상산책로,
  • #공공도서관,
  • #공공체육시설,
  • #웰니스복합문화시설