건축대학 사이버갤러리

Cyber Gallery

2025년 1학기 졸업작품

PIVOT, EXTEND, DENSIFY, INFRASTRUCTURE

세운상가 및 을지로 문맥에서 유지되는 복합 상업 밀도화 발전 제안

김휘남 건축학전공 졸업 2025, 지도교수 : 남수현 교수

장려상 수상작

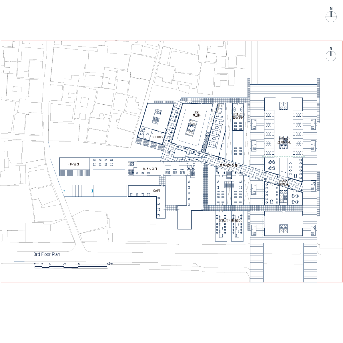
세운상가와 인근 을지로 지역은 현재 주거단지계획에 따라 완전히 철거 후 재개발이 예정되어 있다. 기존 인근은 구역으로 나뉘어 복합주거로 계획되고, 중앙 상가는 완전히 녹지공간으로 전환되도록 되어있다. 본 계획안은 세운상가의 유산인 최초의 주상복합 유형의 의의와 함께 주변에 여전히 기능하고 있는 산업 기반 상업영역을 존중하고 개선함에 따라, 문맥을 유지하면서 현재 도시에 새로운 공간을 추가하면서 밀도를 높이는 방식을 사용한 새로운 방식이다. 기존 건물과 새롭게 만들어지는 공간이 만나면서 단순히 새롭게 만들어지는 방식으로는 만들어낼 수 없는 분위기와 공간, 새롭게 시도됨에 따라 얻을 수 있는 도심 경쟁력을 확보하고자 하며, 이 과정에서 만들어지는 움직임이 이용자와 상인들에게 유리하게 적용되는 것을 보여주고자 한다. 세운상가가 미래 도시발전을 위해 완전히 대체되어야 한다는 인식이 더 이상 단순한 도심정책에 희생되기보다는 그 역사성과 가치를 인정하고 발전 가능성을 찾아내어 살리는 것이 미래 도시발전에 더 효과적인 방안이라는 것을 전달하고자 한다.

설계성과 이미지

설계성과 이미지

설계성과 이미지

설계성과 이미지

설계성과 이미지

설계성과 이미지

설계성과 이미지

설계성과 이미지

설계성과 이미지

설계성과 이미지

설계성과 이미지

설계성과 이미지

프로젝트 주제 스터디

프로젝트 주제 스터디

프로젝트 주제 스터디

프로젝트 주제 스터디

프로젝트 주제 스터디

프로젝트 주제 스터디

키워드 :
  • Sewoon,
  • PIVOT,
  • EXTEND,
  • DENSIFY,
  • INFRASTRUCTURE,
  • STACKING,
  • AXIS