건축대학 사이버갤러리

Cyber Gallery

2025년 1학기 졸업작품

Tracing Water's Memory

사라진 물길을 따라 광통관 보존과 오피스 복합문화시설 제안

프로필 사진

이수민 전통건축전공 졸업 2024, 지도교수 : 한지만 교수

도시가 발전하면서 과거 한양 도성을 이루고 있던 물길은 사라지고 복개되면서 원형을 찾기 어려워졌다.
도성 안 중심 통로였으며, 주변에 시전이 위치하고 있어 가장 많은 사람들이 이동하던 길은 흔적만 남긴 채 역사 속으로 사라졌다.
사라진 과거의 물길을 따라서 생긴 과거부터 현재까지 이어지는 상업 활동의 중심지를 기억하는 공간을 제안하고자 한다.

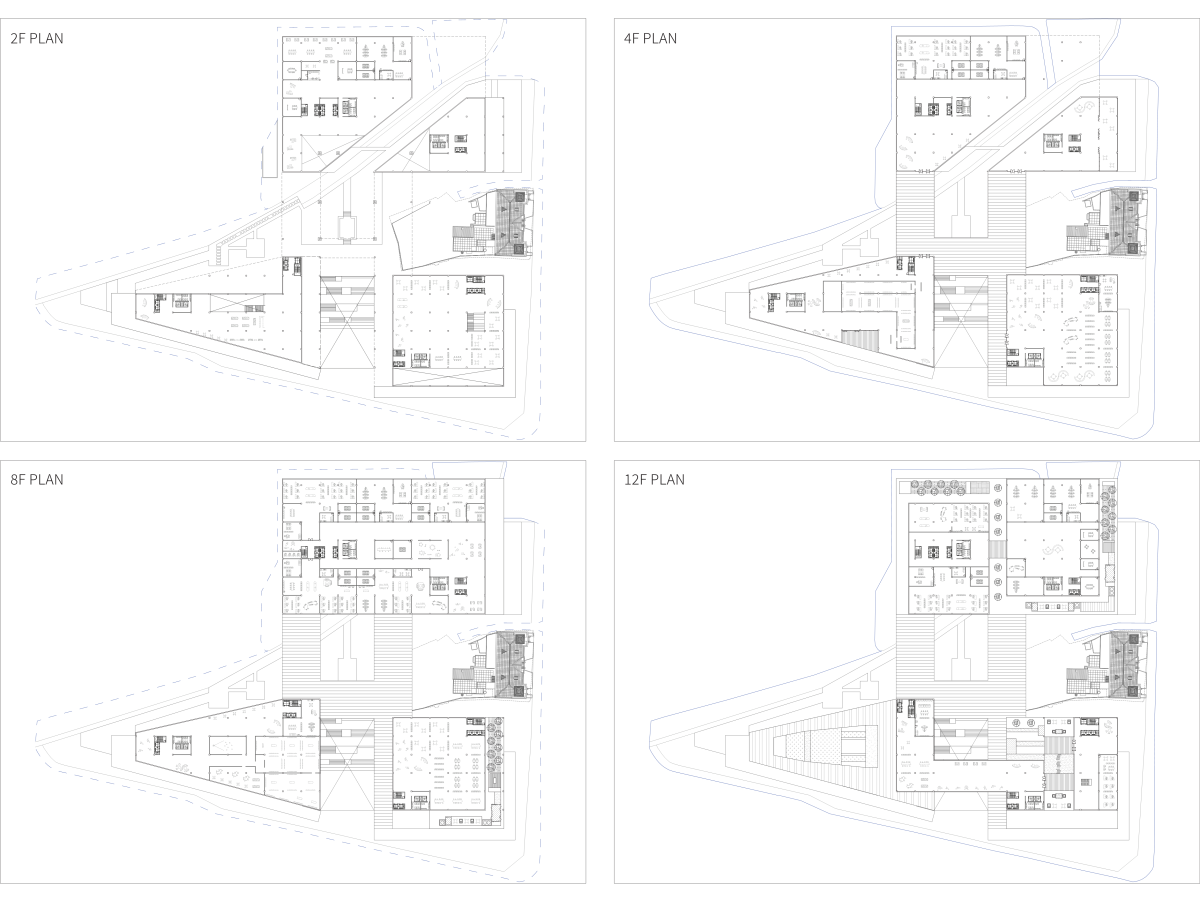
설계성과 이미지

설계성과 이미지

설계성과 이미지

설계성과 이미지

설계성과 이미지

설계성과 이미지

설계성과 이미지

설계성과 이미지

설계성과 이미지

설계성과 이미지

설계성과 이미지

설계성과 이미지

프로젝트 주제 스터디

프로젝트 주제 스터디

프로젝트 주제 스터디

프로젝트 주제 스터디

프로젝트 주제 스터디

키워드 :
  • 청계천,
  • 남대문로,
  • 물길,
  • 문화유산,
  • 복합문화시설