건축대학 사이버갤러리

Cyber Gallery

2025년 1학기 졸업작품

AI야, 건축설계도 잘하니?

건축가 없는 건축설계에 대한 가능성 탐구와 BubbleAI제작기

김나현 건축학전공 졸업 2025, 지도교수 : 이상현 교수

장려상 수상작

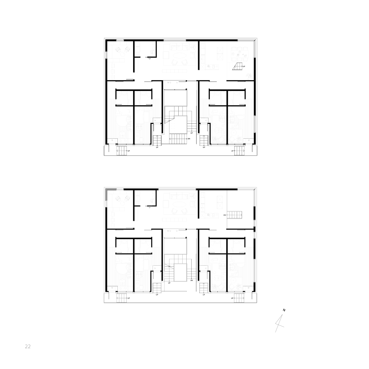
본 프로젝트는 특정 건축가의 설계 논리를 AI가 학습하고 재해석하는 가능성을 탐구한다. 개인과 집단의 관계성을 독특한 평면으로 풀어내는 야마모토 리켄의 건축을 데이터로 삼았다. GPT가 사용자 요구를 버블 다이어그램으로 구조화하면, 리켄의 평면 패턴을 학습한 Graphormer가 공간의 위치와 관계를 건축적 맥락에 맞게 보정하는 방식이다. 이는 AI가 건축가의 고유한 평면 언어를 단순 모방이 아닌 관계적 규칙으로 이해하고, 그 사고가 투영된 설계안을 제안할 수 있음을 보여준다. 이 실험은 AI가 설계의 출발점을 제안하는 창의적 협력 도구가 될 수 있음을 입증한다.

설계성과 이미지

설계성과 이미지

설계성과 이미지

설계성과 이미지

설계성과 이미지

설계성과 이미지

설계성과 이미지

설계성과 이미지

설계성과 이미지

설계성과 이미지

설계성과 이미지

설계성과 이미지

프로젝트 주제 스터디

프로젝트 주제 스터디

프로젝트 주제 스터디

프로젝트 주제 스터디

프로젝트 주제 스터디

키워드 :
  • 인공지능,
  • 건축설계,
  • 생성형AI,
  • BubbleAI,
  • 야마모토리켄,
  • 건축가의역할,
  • 버블다이어그램,
  • 설계논리,
  • Graphormer