건축대학 사이버갤러리

Cyber Gallery

2025년 1학기 졸업작품

Upcycle - Line X

프로필 사진

성하준 건축학전공 졸업예정 2026, 지도교수 : 이상현 교수

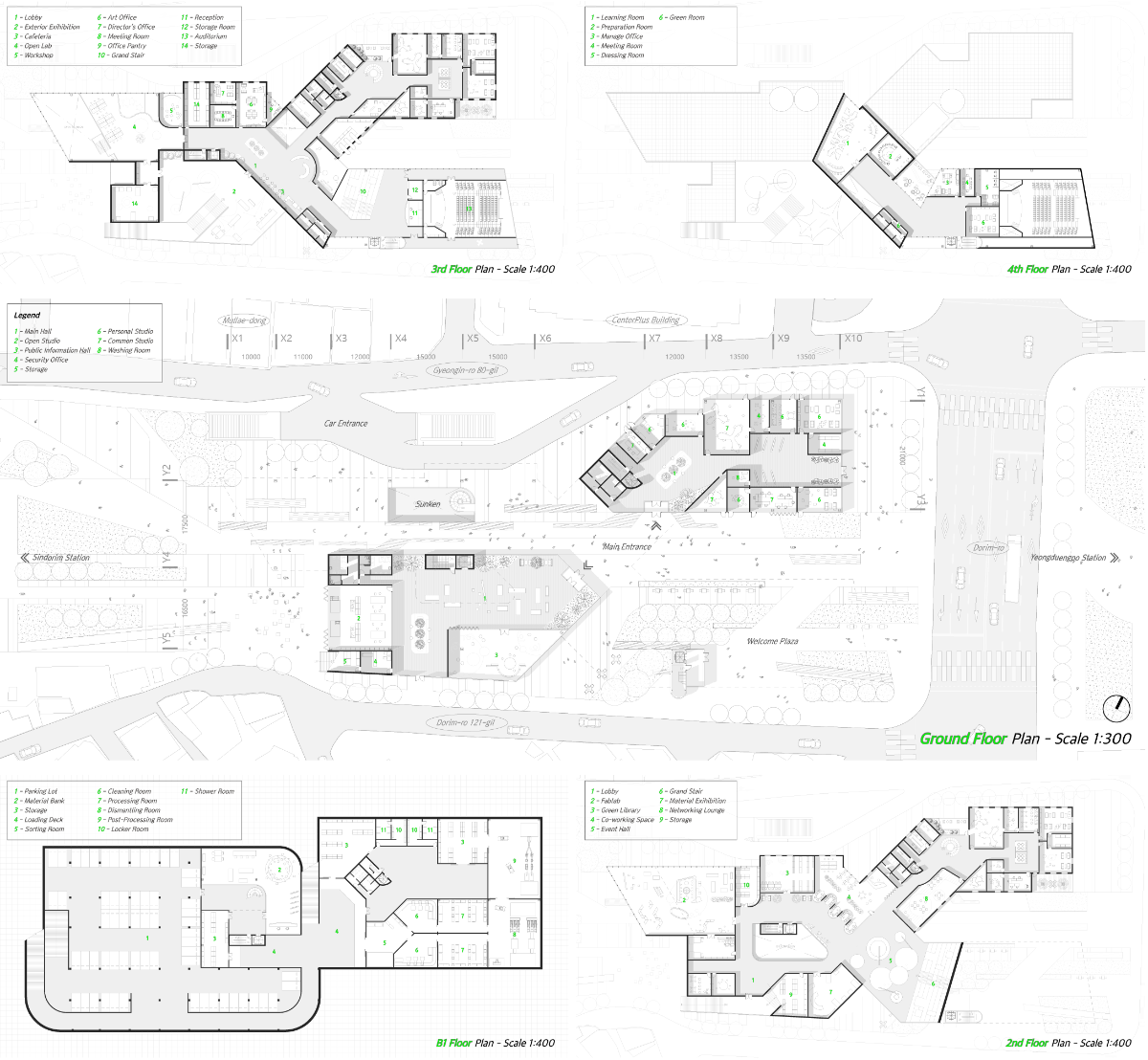
서울시는 지상철도를 지하화한다는 ‘철도지하화 통합개발 계획’을 발표했다. 일부 구간을 제외한 지상철도 부지를 녹지로 획일적 개발한다는 계획이며, 해당 부지에 대한 구체적인 대안이 없는 상황이다. 또한 생활 및 산업폐기물에 대한 처리 문제와 이로 인한 갈등이 날이 갈수록 심화되고 있다. 이에 따라 새롭게 가용해지는 부지에 사회 기반 시설이자 소비 시스템의 전환을 가능케하는 업사이클 센터를 제안한다.

설계성과 이미지

설계성과 이미지

설계성과 이미지

설계성과 이미지

설계성과 이미지

설계성과 이미지

설계성과 이미지

설계성과 이미지

키워드 :
  • 철도지하화,
  • 업사이클센터,
  • 자원순환시설,
  • 복합문화공간,
  • 영등포,
  • 문래동