건축대학 사이버갤러리

Cyber Gallery

2025년 1학기 졸업작품

Creative Circut - 연령을 초월한 창의 회로 : 새로운 유형의 교육·연구 복합시설 제안

프로필 사진

신지호 건축학전공 졸업예정 2026, 지도교수 : 이상현 교수

장려상 수상작

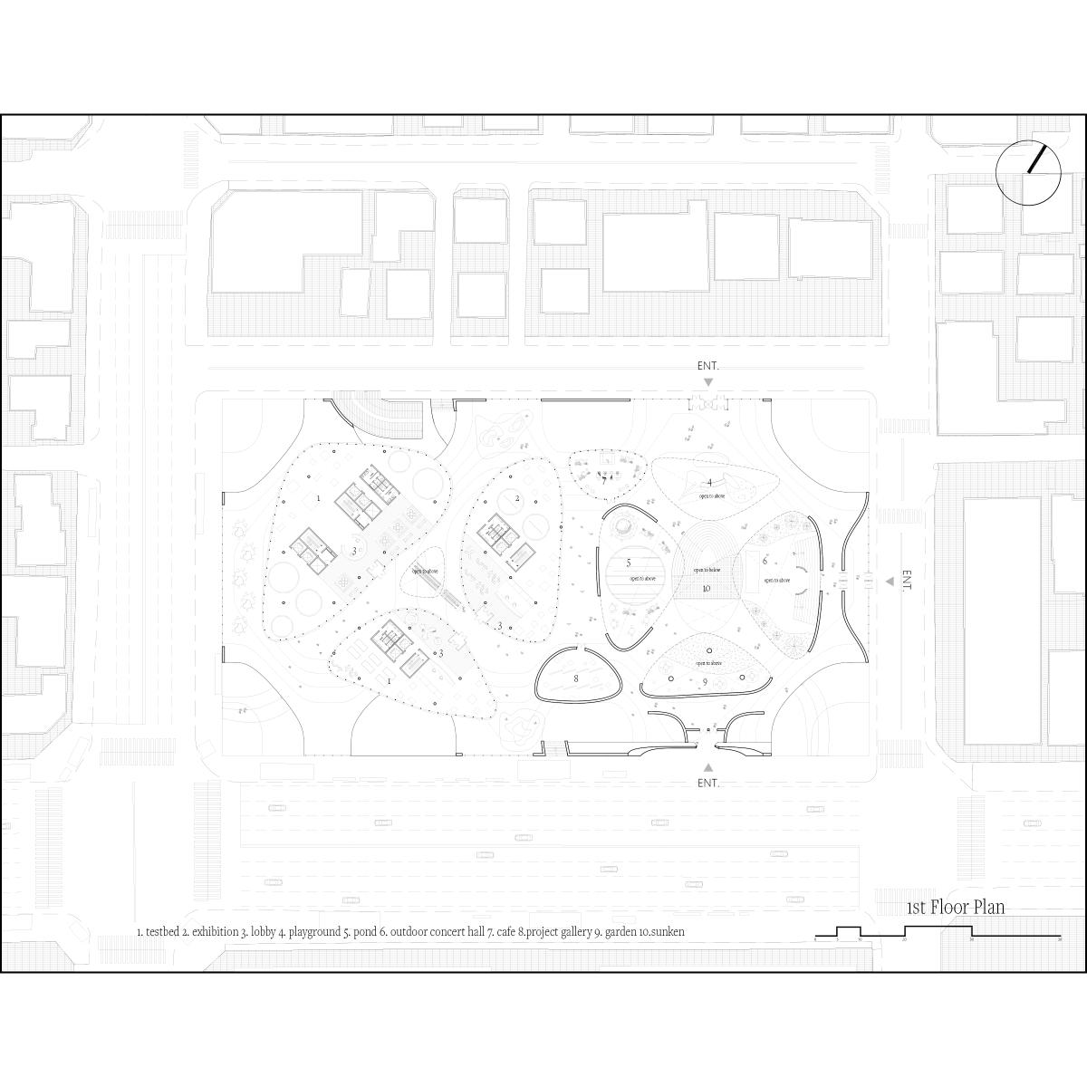
본 프로젝트 Creative Circuit은 대기업 R&D·대학·영재교육센터를 통합하여 세대와 분야를 초월한 지식 생태계 모델을 제시한다. 특히 대학을 도시로 끌어내어 지역 사회와의 접점을 확대하며 도시의 기능을 보완하고, 교육·연구·산업이 순환적으로 연결되는 구조를 통해 지속 가능한 혁신을 실현하고, 어린아이부터 대학생과 연구자까지 전 세대를 아우르는 열린 연구 환경을 구축한다. 이를 통해 미래형 연구·교육의 새로운 프로토타입을 제안한다.

설계성과 이미지

설계성과 이미지

설계성과 이미지

설계성과 이미지

설계성과 이미지

설계성과 이미지

설계성과 이미지

설계성과 이미지

설계성과 이미지

설계성과 이미지

설계성과 이미지

설계성과 이미지

프로젝트 주제 스터디

프로젝트 주제 스터디

프로젝트 주제 스터디

프로젝트 주제 스터디

프로젝트 주제 스터디

프로젝트 주제 스터디

키워드 :
  • 명지대학교,
  • 신지호,
  • 대기업,
  • 대학,
  • 영재교육센터,
  • 건축