건축대학 사이버갤러리

Cyber Gallery

2025년 1학기 졸업작품

Yeoui Wellness Park

여의도 공원 재구조화를 통한 복합 커뮤니티 허브 제안

프로필 사진

이수환 건축학전공 졸업 2025, 지도교수 : 전진영 교수

장려상 수상작

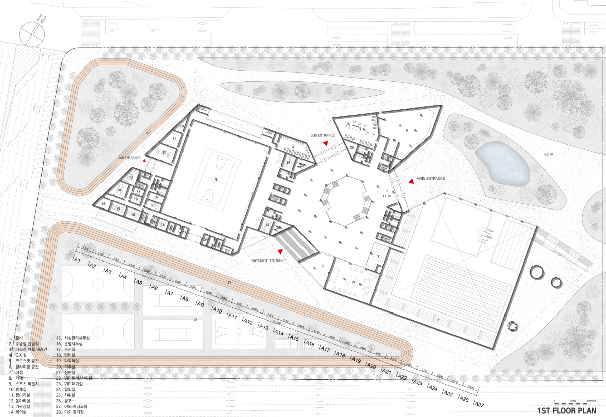
여의도 공원의 중심부에 스포츠와 웰니스 프로그램을 결합한 새로운 커뮤니티 허브를 제안한다. 코로나19 이후 변화한 여가 문화와 오프라인 커뮤니티 기능의 약화, 그리고 여의도 공원 중심부의 저활용 문제를 해결하고자 한다. 단순한 모임 공간이 아닌 자연과 신체활동을 매개로 한 ‘경험의 공유’를 통해 사람과 도시, 그리고 자연을 다시 연결하는 데 있다. 지상 공간은 러닝 트랙, 각종 스포츠 공간, 커뮤니티 라운지, 자연 체험 공간으로 구성되어 시민의 일상적 운동과 여가활동을 통한 커뮤니티를 유도한다. 지하는 도심과 물리적으로 분리된 회복의 공간으로, 명상·호흡 프로그램, 릴렉스 요가와 워터테라피, 웰니스 워크숍, 선큰을 통한 자연광 활용 공간 등을 배치하여 몰입감 있는 치유 경험을 제공한다. 이러한 복합적 구성은 기존 웰니스·스포츠 시설이 제공하지 못하는 일상적 여가와 회복 루틴을 가능하게 하며, 밀도 높은 도심 속에서도 시민이 짧은 시간에 휴식과 운동, 교류를 동시에 경험할 수 있도록 한다. 궁극적으로 이 설계안은 서울의 서남권의 취약한 문화·커뮤니티 인프라를 보완하고, 여의도 공원을 서울의 새로운 복합 커뮤니티 허브로 재탄생 시키려는 시도이다.

설계성과 이미지

설계성과 이미지

설계성과 이미지

설계성과 이미지

설계성과 이미지

설계성과 이미지

설계성과 이미지

설계성과 이미지

설계성과 이미지

설계성과 이미지

설계성과 이미지

설계성과 이미지

프로젝트 주제 스터디

프로젝트 주제 스터디

프로젝트 주제 스터디

프로젝트 주제 스터디

프로젝트 주제 스터디

프로젝트 주제 스터디

키워드 :
  • 여의도,
  • 웰니스,
  • 스포츠,
  • 복합커뮤니티허브