건축대학 사이버갤러리

Cyber Gallery

2025년 1학기 졸업작품

The Third Space

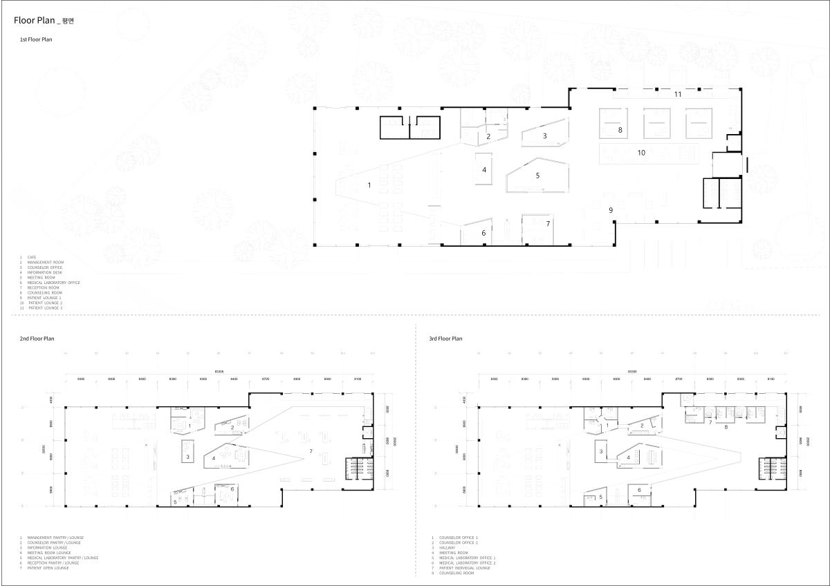
정신건강센터_조정공간

오광진, 박준희 공간디자인전공 졸업 2023, 지도교수 : 오상은 교수

현대 사회에서 우울증은 점차 많아지고 무시할 수 없는 환자 수를 보이고 있다. 우울증을 포함한 정신질환자의 치료 과정은 단순히 본인의 영역에서 치료를 받는 것에 그친다. 하지만 궁극적인 치유는 결국 일상의 경험 속에 있다고 생각한다.

이에 환자들이 일상적인 공간을 바라보며 세계화를 경험하고, 회복과 치료를 넘어 치유의 과정을 겪을 수 있도록 돕는 새로운 제 3공간(The Third Space)을 제안한다. 제 3공간에는 일상과 환자를 통제하면서도 두 영역을 연결하는 행정적인 역할이 부여되어, 두 영역 사이를 적절하게 조절한다.

제 3공간은 안전한 환경을 제공함과 동시에 관리 기능을 통해 환자와 일반 이용자 모두에게 안정감을 준다. 환자들은 일상과의 연결을 통해 심리적·정서적 치유를 경험하고, 세계화를 통한 사회와의 연대감을 느끼며 형성된 감정적 유대를 통해 일상으로 복귀할 희망을 찾는다.

설계성과 이미지

설계성과 이미지

설계성과 이미지

설계성과 이미지

설계성과 이미지

설계성과 이미지

설계성과 이미지

설계성과 이미지

설계성과 이미지

설계성과 이미지

프로젝트 주제 스터디

프로젝트 주제 스터디

프로젝트 주제 스터디

키워드 :
  • 우울감,
  • 현대사회,
  • 제3공간,
  • 관계성,
  • 대립성,
  • 혐오시설,
  • 이용자중심,
  • 조정공간