건축대학 사이버갤러리

Cyber Gallery

2025년 1학기 졸업작품

REPLAY, YUJIN

종점이 된 유진상가, 다시 시작점이 되다.

프로필 사진

김도현 건축학전공 졸업 2025, 지도교수 : 김남훈 교수

장려상 수상작

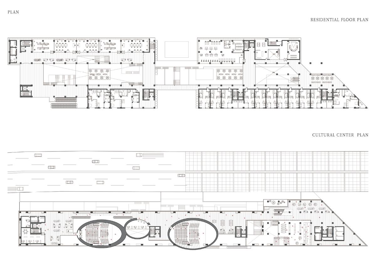
오랜세월 자리를 지킨 유진상가는 홍제동과 결합하여 더이상 단순한 건물이 아닌 지역주민들의 생활공간의 일부로 자리잡았다. 인왕시장으로부터 시작하여 홍제동 전체에 퍼진 시장 거리는 서울에서 보기 힘든 사람냄새나는 거리를 만들었고, 유진상가에도 그 손길을 뻗어 기존 필로티 공간이었던 동측 1층 공간에는 청과물 시장으로, 2층의 상가 일부분은 헬스장, 기원 등 지역주민들의 여가활동 공간으로 활발히 사용되고 있었다. 하지만 이런 활발한 사용은 2층 일부분과 1층의 동측, 남측 필로티 부분에서만 이루어지고 있었고 주거동으로의 출입구는 청과시장에 의해 가려져 슬럼가의 뒷골목 같은 모습이 되었으며 1층 내부공간은 사용자가 급격히 줄며 북측필로티 부분은 완전히 버려진 상태였다. 이렇게 홍제동의 일부가 되었지만 그 속은 곪아 생활가로의 종점이 되어버린 유진상가를 다시 홍제 거리의 시작점으로 만들고자 한다.

설계성과 이미지

설계성과 이미지

설계성과 이미지

설계성과 이미지

설계성과 이미지

설계성과 이미지

설계성과 이미지

프로젝트 주제 스터디

프로젝트 주제 스터디

프로젝트 주제 스터디

프로젝트 주제 스터디

프로젝트 주제 스터디

프로젝트 주제 스터디

키워드 :
  • REPLAY,
  • YUJIN,
  • STREET